Homesearch Logo

£700

Bradleys

Manchester Street, Manchester Street, EX8 1BS

  • Bedrooms

    1
  • Bathrooms

    1
  • Internal area

  • Property type

    Flat
  • Year built

    Ask Agent

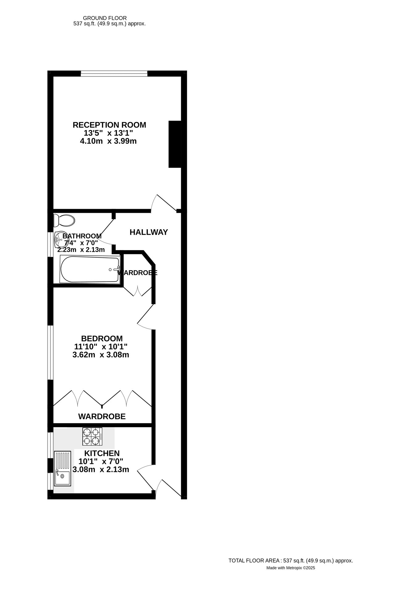
Property description

Available now, this freshly redecorated first-floor flat in the heart of Exmouth offers a spacious lounge, modern kitchen with space for appliances, a double bedroom with built-in storage, and a bathroom. Newly painted with new flooring throughout. Please note: first floor with n...

Additional text is available below.

Brochures

No information available. Please contact the agent for details.

Property Location

Manchester Street, Manchester Street, EX8 1BS

Nearest stations

Nearest schools

Utility supply

Electricity
Water
Heating
Broadband
Sewerage

Rights and restrictions

Private rights of way
Public rights of way
Listed property
Restrictions

Broadband speed