Homesearch Logo
Let Agreed

£1,875

Apparent Properties Ltd

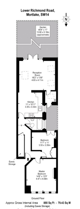
Lower Richmond Road, London, SW14 7HU

  • Bedrooms

    2
  • Bathrooms

    1
  • Internal area

  • Property type

    Flat
  • Year built

    Ask Agent

Property description

A very spacious two double bedroom ground floor apartment in Mortlake with a lovely big garden. This property boasts wood floors throughout and comprises of two great size double bedrooms, family bathroom, and a fully fitted kitchen open-plan with a glorious living room with skyl...

Additional text is available below.

Brochures

No information available. Please contact the agent for details.

Property Location

Lower Richmond Road, London, SW14 7HU

Nearest stations

Nearest schools

Utility supply

Electricity
Water
Heating
Broadband
Sewerage

Rights and restrictions

Private rights of way
Public rights of way
Listed property
Restrictions

Broadband speed